Es gibt einzelne Stufen, die baulich nicht zu beseitigen sind! Für mobilitätseingeschränkte Menschen stellen jedoch auch geringe Höhenunterschiede ein unüberwindbares Hindernis dar. Der völlig Ebene Bodenlift HDN beseitigt diese Barriere - der Durchgangsbereich bleibt für Fußgänger völlig unverändert erhalten!
Oft kann eine Stufe baulich nicht beseitigt werden - der Platz für eine Rampe oder herkömmliche Liftsysteme ist nicht vorhanden! Um die Benützung von Gebäuden durch Fußgänger nicht zu beeinträchtigen muss die Stufe außerdem erhalten bleiben. Mit dem Bodenlift HDN ist es möglich, dennoch einen barrierefreien Zugang zu schaffen!

Für geringe aber problematische Niveauunterschiede

Der Bodenlift HDN ist völlig „unsichtbar” im unteren Niveau eingebaut. Von der oberen und der unteren Etage kann der Lift durch einen Knopfdruck aktiviert werden - ein Teil der Bodenfläche „verwandelt” sich in einen Plattformlift, mit dem der Rollstuhlfahrer die vorhandene Höhendifferenz einfach und selbständig überwinden kann.

Die Ausführung des Bodenlifts kann völlig an bestehende Gebäude und Bodenoberflächen angeglichen werden. Der Lift ist völlig unauffällig - der Einsatz ist daher auch dort möglich, wo Rampen aus optischen Gründen nicht ausgeführt werden können (z.B. Denkmalschutz).
Alle Seiten sind vollflächig durch eine Verkleidung abgedeckt - ein Einklemmen ist praktisch ausgeschlossen!

• Elegantes und benutzerfreundliches Design
• Möglichkeit der optischen Anpassung an die Umgebung
• Robustes und sehr haltbares Design
• Einfach zu bedienen für Rollstuhlfahrer & Gehbehinderte
• Vollständig geschlossenes und risikoloses System
• Zuverlässiges, als Gebrauchsmuster geschütztes Hebeprinzip
• Sicherheitskante rund um den Lift verhindert, dass der Benutzer herunter rollt
• Extrem geräuscharm im Betrieb
• Kann sowohl innen wie außen eingebaut werden

Ausführungen
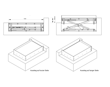
| 2 Hubhöhen: | 0-20cm / 20-50 cm | |
| 3 Plattformgrößen: | 90/100/110 x 140 cm | |
| Ausstieg: | kurze/lange Seite |
